
Grid connection assemblies often have to deal with a difficult mix of electrical load, thermal cycling, vibration, expansion and tight installation constraints. Rigid conductors alone are not always enough, particularly where equipment movement, misalignment or differential expansion must be accommodated.
Tranect supplies connection solutions that are designed to manage these issues while maintaining low resistance and dependable mechanical performance. Our products are used in applications such as:
HV Grid connection systems demand more than a copper conductor and a few bolts. They need electrical performance, mechanical stability, thermal reliability and enough design discipline to survive the real world.
Tranect Ltd designs and manufactures grid connection components and assemblies for power generation, transmission and distribution applications. These include flexible laminated copper busbars, copper braid connectors, transformer connections, insulated supports, and fabricated mounting structures for use in substations, switchyards, transformer bays and other HV and MV installations.
Whether the requirement is for a new-build connection, a retrofit into restricted space, or a replacement assembly for ageing infrastructure, we support projects from concept through to production with 3D CAD modelling, prototyping and testing.
Our flexible laminated copper busbars are used where high current capacity is required alongside controlled flexibility. Manufactured from multiple layers of thin copper strip, these busbars provide a compact, low-resistance connection while allowing movement in one or more planes.
This makes them well suited to grid connection duties where the assembly must absorb:
Laminated flexible busbars can be produced with plain copper, tin-plated copper or silver-plated contact areas, depending on the application and interface requirements. End palms, hole patterns, offsets and formed sections can all be tailored to suit the equipment being connected.
For higher voltage and outdoor substation applications, assemblies may also incorporate insulation, spacing arrangements and support features to meet the mechanical and electrical demands of the installation.
A reliable grid connection is never just the conductor. The surrounding structure matters just as much.
Tranect can supply insulators, support arrangements and fabricated mounting hardware as part of a complete connection package. These items help maintain conductor position, electrical clearance and mechanical integrity across the full assembly.
Support solutions can include:
By designing the conductor and support elements together, we can reduce fit-up problems during installation and improve overall performance of the finished connection.


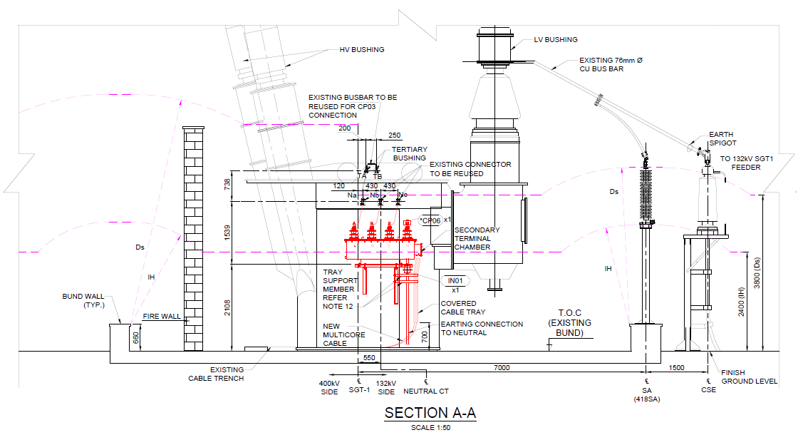
Rye House 400 kV substation – flexible busbar connection from transformer to bushing.

Tranect also manufactures copper braid connectors for grid and power distribution applications. Copper braid is often chosen where a highly flexible connection is needed, particularly in installations subject to vibration, repeated movement or difficult routing constraints.
Our braid connectors can be produced in a wide range of cross-sectional areas and terminal configurations, including:
Copper braid is commonly used for transformer connections, earth continuity, switchgear links and equipment interconnections where flexibility is critical.
Many grid connection projects involve existing equipment rather than clean-sheet design. Hole centres may be fixed, access may be poor, and original drawings may be somewhere between incomplete and fictional.
Tranect has experience supporting retrofit and refurbishment projects where new copper connections must interface with legacy substations, transformers and switchgear. We can work from customer drawings, site dimensions, sample parts or reverse-engineered components to develop practical replacements and upgraded assemblies.
This is especially useful where the goal is to improve reliability, replace ageing conductors, or adapt existing plant to a revised connection arrangemen
We produce 3D CAD models to develop layouts, confirm interfaces, assess clearances and reduce installation risk before manufacture begins. This is particularly valuable for retrofit substation work, transformer connections and constrained plant layouts where access and geometry are awkward.
For new or complex assemblies, we can produce prototypes to verify fit, flexibility, mounting arrangement and manufacturability before moving into production. This helps avoid the classic industry method of discovering problems halfway through site installation.
Where required, we can support validation through appropriate testing of electrical, mechanical or dimensional characteristics. This may include resistance checks, fit-up verification, or project-specific evaluation of the proposed connection design.
Tranect combines manufacturing capability with practical application engineering. We do not simply ask for a drawing and hope for the best.
Customers choose Tranect for grid connection projects because we offer:

CAD model of HV busbar supports

National Grid manual for 3″ diameter HV copper busbar supports