HomeCategory

Transformer Archives - Tranect Ltd

April 2, 2026
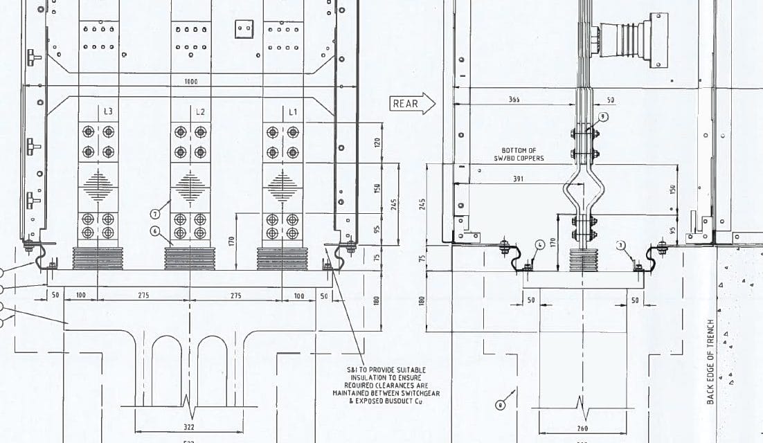
4000 amp 11 kV Transformer connections using flexible copper busbars

Tranect Ltd recently supplied RWE Energy with 4000 amp 11 kV transformer connections, designed and manufactured using flexible laminated copper busbars to meet both electrical and installation constraints on site. This project demonstrates Tranect’s capability in delivering high-current transformer connections where alignment tolerances, thermal expansion and installation access must be carefully managed alongside current-carrying performance....